










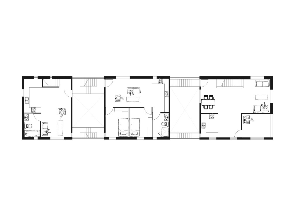
The project began as a multi-use building with four units on the upper levels and a bookstore and cafe on the ground floor set in Chicago’s Logan Square neighborhood. The interaction of the people in the units drove the design of the building to direct how the inhabitants might interact within their small community in relation to time and the space they were occupying. Communal space was too much, however separate entrances were too little. A common entry began to form on the North side of the building which residents would interact as they moved through the building to and from their homes which took on the form of modular pieces which shifted to direct these interactions. The goal of creating a gradient of privacy levels as the residents traveled through the building from the most communal to the most isolated. The shifts began to break the floor plates compressing the space of the bookstore below. Creating separation between the units allowed a greater sense of privacy and allowed the compression in the bookstore below to release and gain natural light and pulling people all the way inside the store to the cafe counter and to the lounge. Pulling the units apart provided an opportunity to adjust the apertures in the walls with the intent of maintaining privacy within the units while also reminding residents of their neighbors much like a short garden fence.
The building has cavity masonry walls on the exterior, similar to the many masonry buildings in the neighborhood, and wood frame interior walls. The floor plates are precast concrete and are easily able to span the width of the building.