



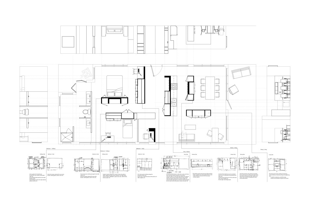
While the project began as an exercise in proportions and scale of living arrangements for a small family, it transitioned into an investigation of sliding planes and the study of privacy. How do you define spaces and create privacy once you remove the doors? What happens when the only walls that remain are functional to the home and not only for separation?